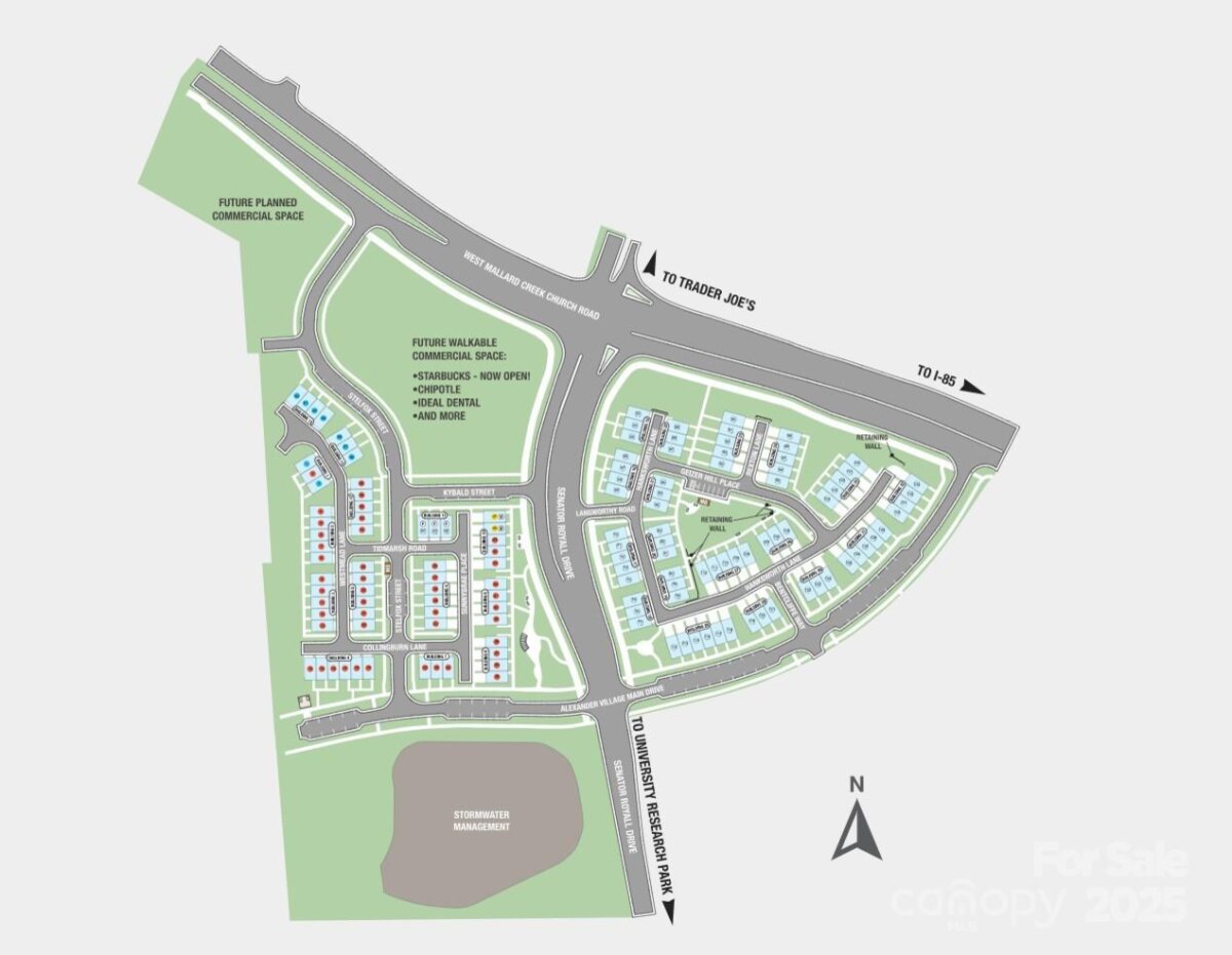
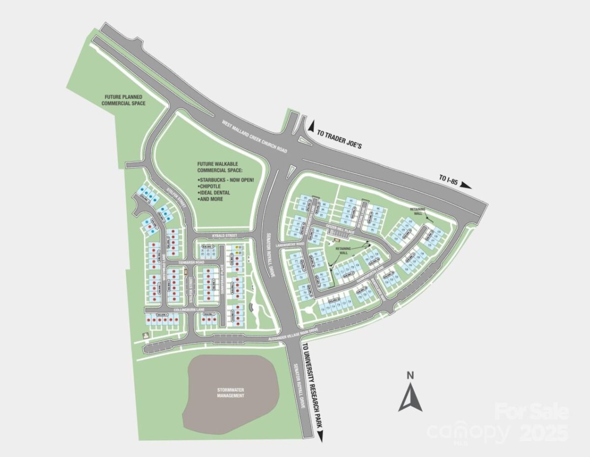
New Construction - October Completion! Built by America's Most Trusted Homebuilder. Welcome to the Breckenridge II at 3114 Stelfox Street in Senata at Research Park. The ground floor features a bedroom with a full bath—ideal for guests or a quiet home office. On the second level, you'll find a bright, open-concept with a spacious gathering room, kitchen with a large center island, and a casual dining area that opens to the deck. A convenient powder room completes this level. Upstairs, two secondary bedrooms share a full bath, while the centrally located laundry adds ease to your routine. The serene owner's suite includes a generous walk-in closet and an attached bath with dual sinks, a built-in shower ledge, and stylish finishes throughout. Additional highlights include: gourmet kitchen, added bedroom with full bath, and owner's shower with built-in ledge. Photos are for representative purposes only. MLS#4259727
| MLS#: | 4259727 |
| Price: | $474,990 |
| Square Footage: | 1952 |
| Bedrooms: | 4 |
| Bathrooms: | 3.1 |
| Year Built: | 2025 |
| Type: | Townhouse |
| Virtual Tour: | Click here |
| Listing courtesy of: | Taylor Morrison of Carolinas Inc - charlotteonline@taylormorrison.com |
Contact An Agent:




















