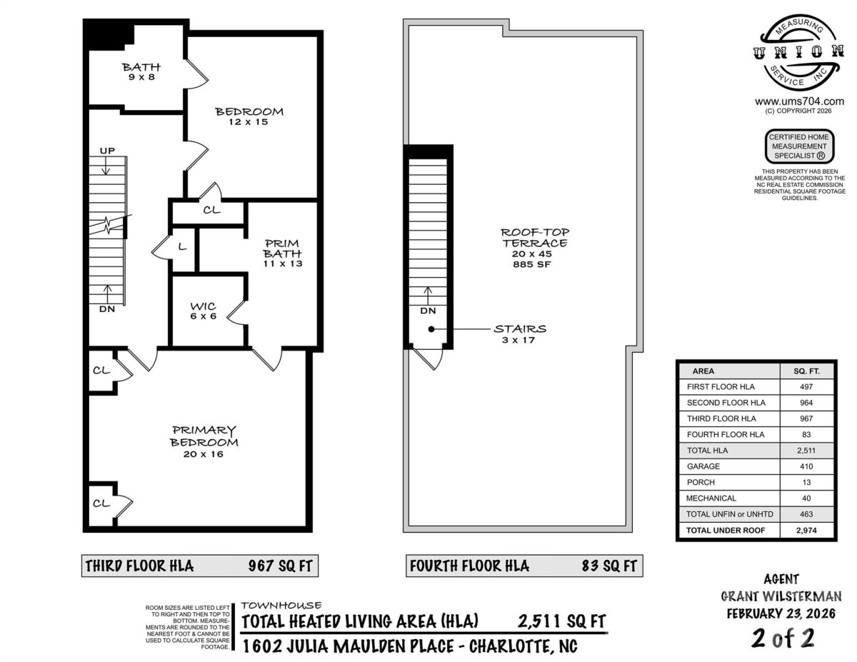
Welcome to modern luxury at 1602 Julia Maulden Place, a stunning residence in the heart of the Belmont neighborhood. Upon entering, you are greeted by 2-car garage finished like interior space, a drop-zone, and a moody office or guest suite on the first floor that sets a refined tone for the home. The main level is designed for effortless living, featuring a completely open concept layout where the kitchen, living, and dining areas create an expansive environment for entertaining. High-end finishes anchor the space, while a massive multi-sliding door dissolves the barrier between the interior and the outdoor terrace, inviting the outside in for seamless relaxation. The home’s 3rd floor serves as your private retreat, highlighted by a spacious primary bedroom suite complete with a walk-in closet and generous additional storage. A second guest bedroom is also located on this level, featuring its own private ensuite bathroom to ensure comfort for all visitors. The crown jewel of this residence is the incredible 4th floor rooftop terrace, offering nearly 900 square feet of outdoor living space with stunning city views. Finished with turfed flooring, the terrace is an entertainer’s dream, equipped with a cozy propane fire pit and plumbing ready for a gas grill and sink. Beyond the aesthetics, the home is engineered for modern efficiency. You will enjoy the convenience of Lutron smart switches throughout and an automated watering system for the beautifully landscaped, fenced-in yard. Two car garage outfitted with a dedicated EV charger. Located in the center of it all, you are just a short walk away from the vibrant culinary scene at Optimist Hall and Bird Pizzeria, the commute-friendly Parkwood Lightrail Station, and the recreational trails of the Little Sugar Creek Greenway, offering a lifestyle that truly defines Charlotte living at its best.
| MLS#: | 4356693 |
| Price: | $789,000 |
| Square Footage: | 2511 |
| Bedrooms: | 3 |
| Bathrooms: | 3.1 |
| Year Built: | 2023 |
| Type: | Townhouse |
| Listing courtesy of: | COMPASS - grant.wilsterman@gmail.com |
Contact An Agent:












































