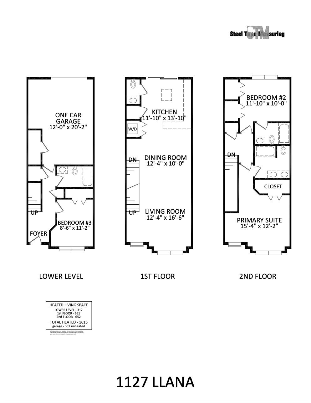
Welcome to 1127 Ilana Ct, a beautifully refreshed home in the heart of Elizabeth with stylish updates and an unbeatable location just minutes from Uptown. With fresh paint, new LVP flooring throughout the living spaces, and new carpet in the bedrooms, this move-in-ready home blends modern finishes with comfortable living in one of Charlotte’s most vibrant neighborhoods. The first floor features a bedroom and full bath, ideal for guests or a private home office, along with a one-car garage with a storage closet for added convenience. Upstairs on the main living level, you’ll find a bright, open layout with a seamless flow between the living room, dining area, powder room, and kitchen. The kitchen has been updated with all new stainless steel appliances and opens to a small private deck, bringing in natural light and fresh air. The third floor offers a well-designed retreat with the primary suite, convenient laundry area, and an additional bedroom with its own ensuite full bath. Located in highly desirable Elizabeth, you’re just minutes from shops, restaurants, parks, and Uptown Charlotte. 1127 Ilana Ct offers a rare opportunity to enjoy low-maintenance living with modern updates in a prime location.
| MLS#: | 4360200 |
| Price: | $465,000 |
| Square Footage: | 1615 |
| Bedrooms: | 3 |
| Bathrooms: | 3.1 |
| Year Built: | 2007 |
| Type: | Condominium |
| Virtual Tour: | Click here |
| Listing courtesy of: | Helen Adams Realty - mbooe@helenadamsrealty.com |
Contact An Agent:
































