Denver, North Carolina
3923 Sage Court
$280,000 Under Contract - No Show
Complex: The Terraces
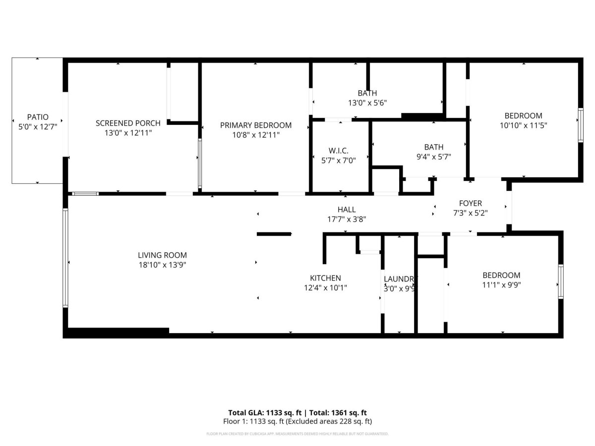
3-bedroom, 2-bath patio home located in the desirable 55+ community The Terraces in Denver, NC. This inviting home offers effortless single-level living with a bright, open layout. Enjoy fresh paint throughout, new carpet in all 3 bedrooms and new LVP flooring in the main living areas and kitchen. Community amenities include a clubhouse and a serene pond, offering a perfect setting for social gatherings, leisurely walks, or quiet reflection. Located just minutes from shopping, dining, and Lake Norman, this home combines low-maintenance living with an active, friendly lifestyle.
Back to Property List
Basic Information
| MLS#: | 4317423 |
| Price: | $280,000 |
| Square Footage: | 1133 |
| Bedrooms: | 3 |
| Bathrooms: | 2 |
| Year Built: | 2001 |
| Type: | Townhouse |
| Listing courtesy of: | EXP Realty LLC Mooresville - hndeininger@gmail.com |
Contact An Agent:



































