Davidson, North Carolina
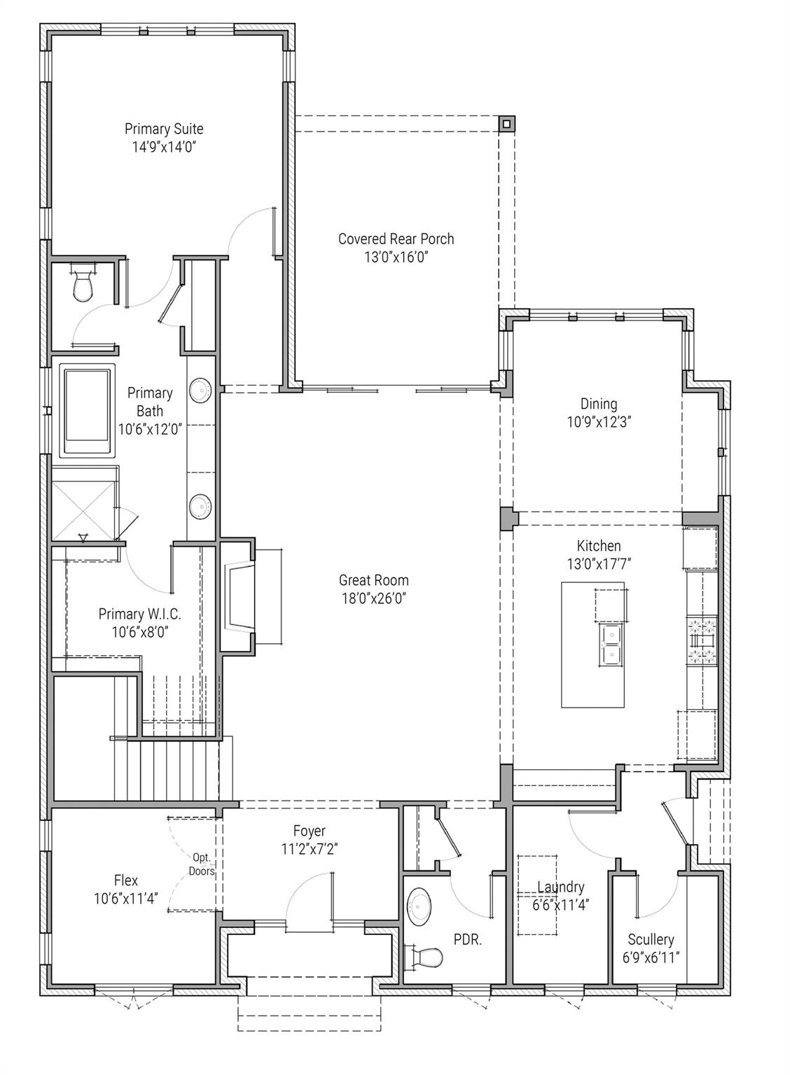
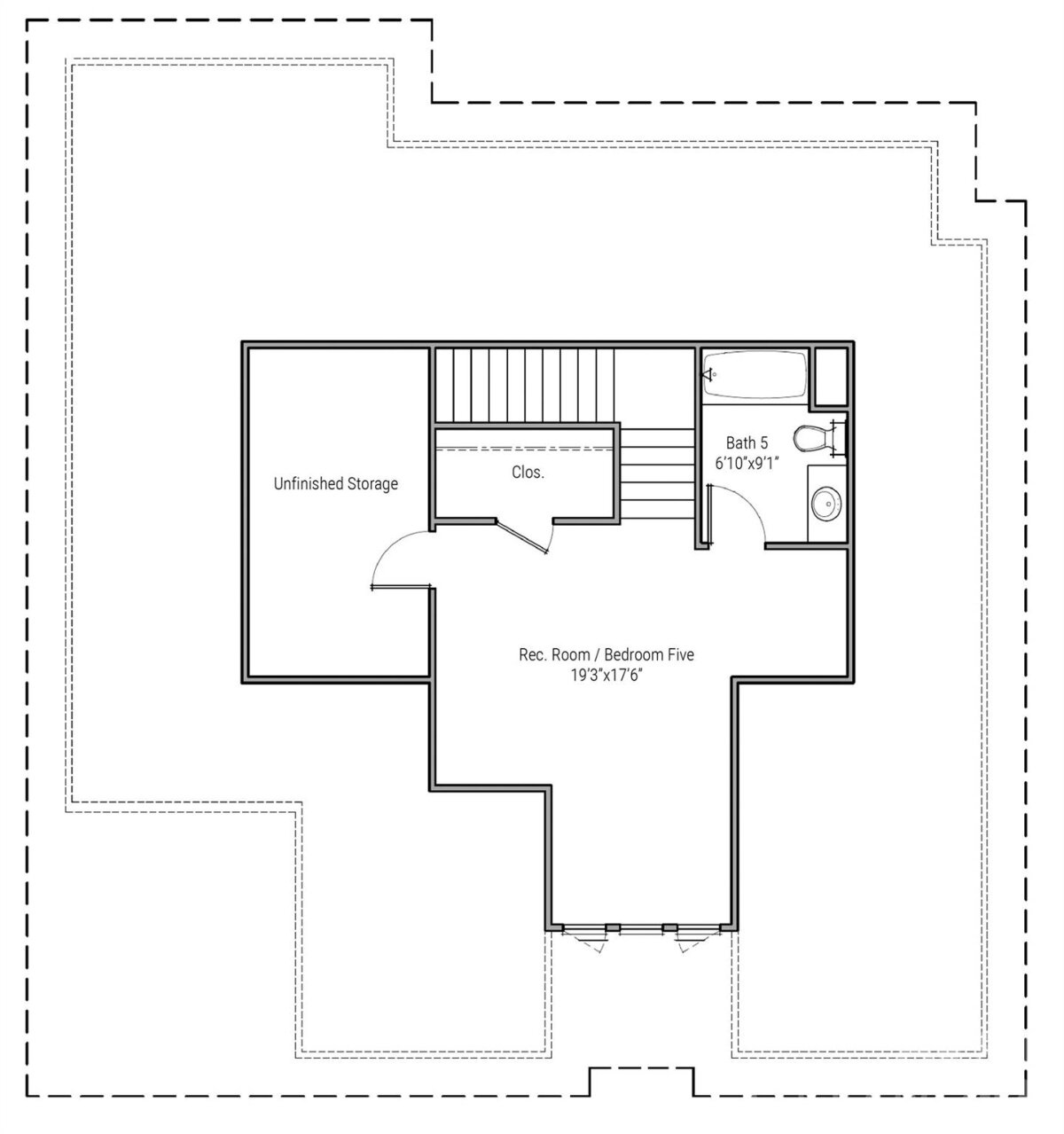
ONE LOT REMAINING! Build a custom home in the heart of Davidson. Located in a premier walkable location, this homesite offers easy access to historic downtown, Davidson College, and the vibrant shops and restaurants along Main Street. This proposed home is to be built by one of Charlotte’s premier custom builders, known for exceptional craftsmanship, thoughtful design, and luxury finishes throughout. The inviting layout features an open floor plan with a first-floor primary suite, a gourmet kitchen with custom cabinetry, an expansive island, and a separate scullery. Large sliding doors seamlessly connect the main living area to a generous covered porch—perfect for outdoor entertaining. Please note: this home is proposed. We offer flexibility in design and customization and are happy to collaborate with your architect to bring your vision to life. For additional details on the LOT, see Lot listing MLS#: 4326882
| MLS#: | 4328998 |
| Price: | $2,427,000 |
| Square Footage: | 3907 |
| Bedrooms: | 4 |
| Bathrooms: | 4.1 |
| Acreage: | 0.44 |
| Year Built: | 2026 |
| Type: | Single Family Residence |
| Listing courtesy of: | Simonini Realty Inc - john@simonini.com |
Contact An Agent:



