Davidson, North Carolina
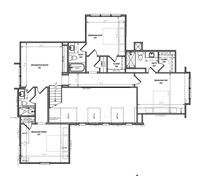
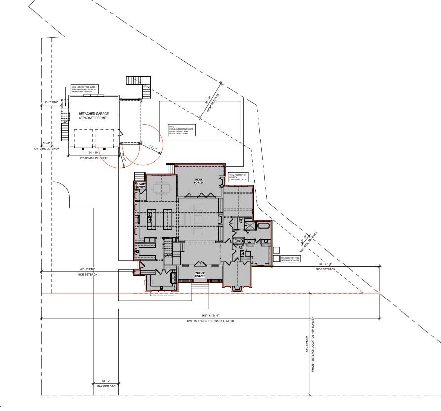
Rare opportunity to own a fully custom home on one of Davidson’s most desirable streets. Located at 541 Greenway Street, this thoughtfully designed residence by a local award-winning builder blends timeless architecture with modern livability on large and private lot. This 5-bedroom, 5 full bath home offers approximately 3,990 square feet of heated living space with a highly functional, design-forward layout . The main level features a vaulted great room, designer kitchen with large island and premium appliances, butler’s pantry, and seamless access to a covered rear porch with fireplace overlooking the planned pool and outdoor living area. The main-level primary suite offers a private retreat with a spa-style bath, soaking tub, walk-in shower, and generous closet. A dedicated study/second bedroom, mudroom, and drop zone provide flexibility for everyday living. Upstairs includes three additional bedrooms each with en-suite full bath, and a spacious recreation room, ideal for guests or family living. A true highlight of the property is the detached three-story garage, offering exceptional versatility with an additional 1063 feet of heated living space. This structure includes a finished lower-level recreation room, two-car garage, and a fully finished apartment/in-law suite above, perfect for guests, office space, or long-term stays . Additional walk-in storage provides ample space for organization. High-end finishes throughout are expected to include hardwood flooring, custom millwork, designer lighting, windows, and multiple indoor and outdoor fireplaces . Enjoy the best of Davidson living just moments from downtown shops, dining, and greenway access, while still benefiting from the privacy and quality of new construction. Buyer may have opportunity to make select design choices depending on timing.
| MLS#: | 4363434 |
| Price: | $3,750,000 |
| Square Footage: | 3990 |
| Bedrooms: | 5 |
| Bathrooms: | 5 |
| Acreage: | 0.56 |
| Year Built: | 2026 |
| Type: | Single Family Residence |
| Listing courtesy of: | TSG Residential - mike@tsgresidential.com |
Contact An Agent:






