Davidson, North Carolina
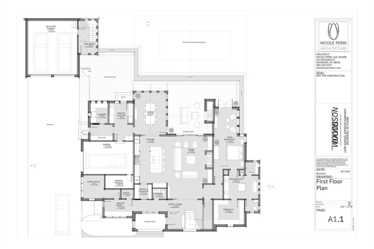
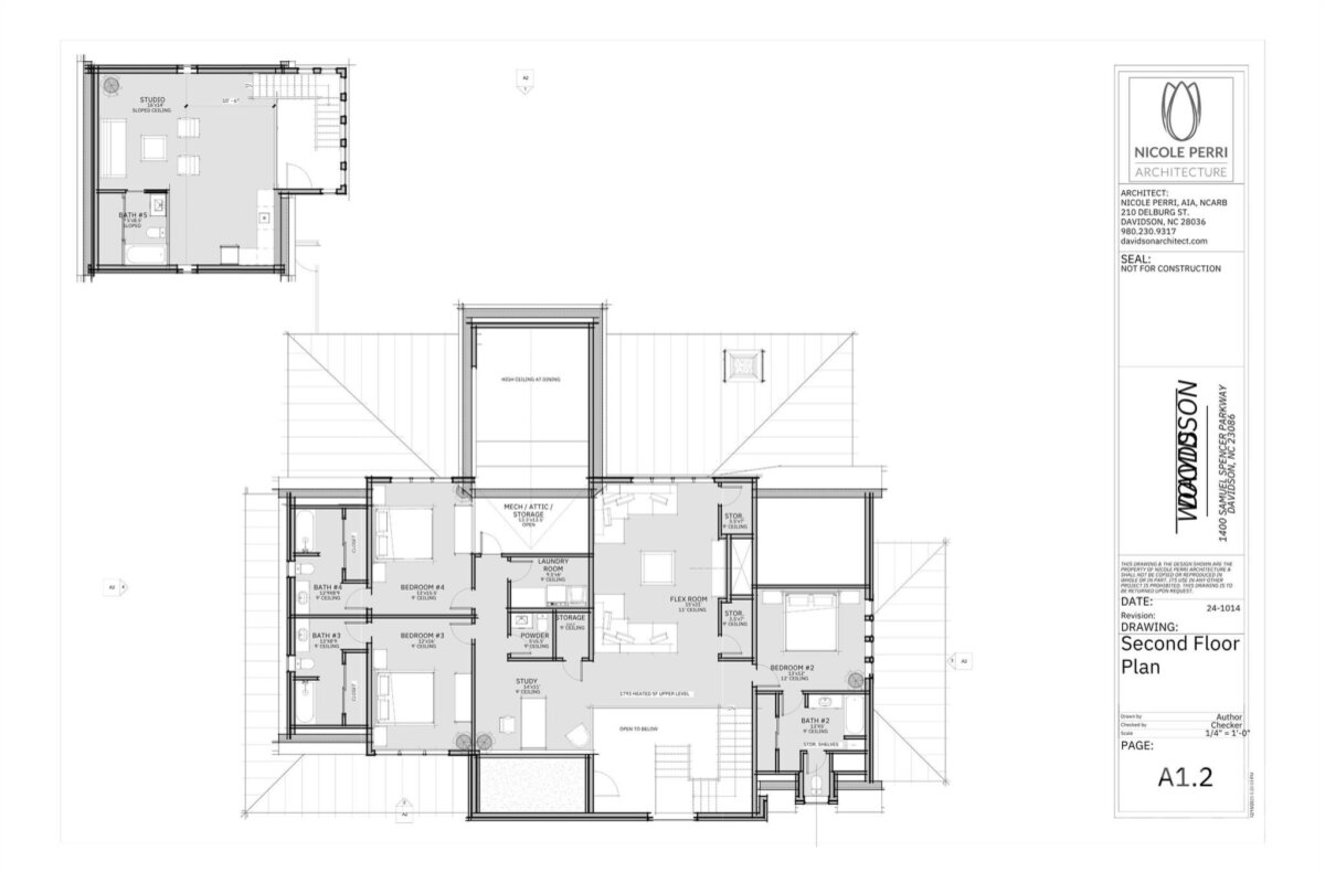
Build a custom home with local Davidson builder Holliday Homes. This nearly half-acre lot in Davidson Woods sits next to 1.5 acres of protected open space with streams and mature forest, offering a private, scenic setting for your custom home. Architect Nicole Perri's proposed plans showcase a stunning modern European design with 5 bedrooms (first-floor primary suite), 4 1/2 bathrooms, and over 4,600 square feet. This home plan blends classic architecture with fresh, modern finishes, featuring a layout perfect for everyday living. Minutes from downtown Davidson, top-rated schools, the Davidson Greenway, and Lake Norman amenities. This home is proposed. Holliday Homes, LLC is the exclusive builder for the lot. Plans remain customizable, allowing you to tailor the home to your vision, or bring your own architect and plans. Holliday Homes reserves the right to change floor plans, home sizes, exterior materials and interior specifications without notice. All optional choices and amenity requests are subject to availability, pricing and construction cut-off dates. All renderings and floor plans are artist’s conceptions and are not intended to be actual depiction of buildings, walkways, driveways or landscaping. Background imaging positioned behind exterior elevations including (but not limited to) exterior locations, open space or outdoor scenery is artist’s conception only, and is not intended to be depictions of a communities views, settings or locations.
| MLS#: | 4364375 |
| Price: | $2,950,000 |
| Square Footage: | 4685 |
| Bedrooms: | 5 |
| Bathrooms: | 5.1 |
| Acreage: | 0.45 |
| Year Built: | 2026 |
| Type: | Single Family Residence |
| Listing courtesy of: | TSG Residential - bill@tsgresidential.com |
Contact An Agent:








