Fort Mill, North Carolina
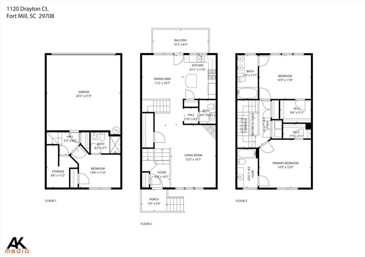
Extremely well-maintained 3-bedroom, 3.5 bath townhome in Baxter Village! This townhome features two primary suites on the upper level. The kitchen boasts granite counters, SS appliances, a pantry, an island w/breakfast bar and a dining area. The main floor has an open floor plan to the living room with a gas log fireplace and a balcony off the dining area. The first primary bedroom on the upper level has a tray ceiling, WIC, and an ensuite bath with a double sink vanity and a shower/tub combo. The second primary has a tray ceiling, and an ensuite bath with a single vanity and a shower/tub combo. The laundry is on this level in the hall. The lower level offers a third bedroom/office/gym with an ensuite bath with a single vanity and a step-in shower. There is also a storage area on this level under the stairs, as well as the garage. washer/dryer included but owner will not maintain. Pets conditional. **No Cats**. Owner will consider 6, 9, or 12 month lease.
| MLS#: | 4316151 |
| Price: | $2,600 |
| Square Footage: | 1848 |
| Bedrooms: | 3 |
| Bathrooms: | 3.1 |
| Year Built: | 2008 |
| Type: | Townhouse |
| Listing courtesy of: | First Properties - Jhenderson7687@gmail.com |
Contact An Agent:


























