Albemarle, North Carolina
Where every day feels like a vacation—welcome to your Lake Tillery retreat. Just off the main channel of Lake Tillery, this private custom home is designed for the ultimate lakefront lifestyle. Offering over 4,000 square feet, the home provides exceptional space for both entertaining and everyday living. Dual primary suites, one on the main level and one on upper level, gives flexibility for guests, multi-generational living, or a vacation escape. Enjoy beautifully terraced outdoor living, featuring an in-ground pool and approximately 200 feet of shoreline. Two private docks with lifts, along with an impressive 950-square-foot enclosed boathouse—complete with roll-up doors and electric self-recovery—ensure effortless lake access and secure watercraft storage. Take in peaceful views of the James B. Garrison Bridge from the dock, relax poolside or by the fireplace while enjoying the privacy and tranquility this property offers year-round. No HOA. Short-term rentals permitted. Furniture available for purchase separately. Whether you’re seeking a full-time residence, weekend getaway, or investment opportunity, this exceptional lakefront property delivers unmatched versatility. With the perfect balance of lakefront privacy and convenient access to outdoor adventure and nearby amenities, this lake house is near to Morrow Mountain State Park and the Uwharrie National Forest; enjoy endless opportunities for hiking, biking, camping, and trail riding. Charming small towns including Albemarle, Norwood, Badin, Mount Gilead, and Troy are just a short drive away, offering local dining, shopping, and community events. A nearby winery adds to the area’s appeal, perfect for relaxing afternoons close to home. Lake Tillery is also home to two waterfront restaurants and three marinas. Enjoy the tranquility of the lake without sacrificing convenience—this property is ideally situated within easy reach of several major cities: Charlotte, Winston-Salem, Durham and Raleigh, Pinehurst, and Greensboro.
| MLS#: | 4367629 |
| Price: | $1,100,000 |
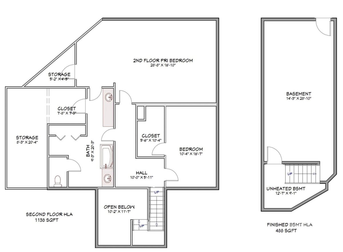
| Square Footage: | 4018 |
| Bedrooms: | 4 |
| Bathrooms: | 3 |
| Acreage: | 0.34 |
| Year Built: | 1979 |
| Type: | Single Family Residence |
| Listing courtesy of: | Lake Tillery Properties LLC - megan@thelakeladyteam.com |
Contact An Agent:














































